Приміщення і Споруди в Одесі
Продажа производственной территории со строениями в промзоне Малиновского р-она. в Одесі
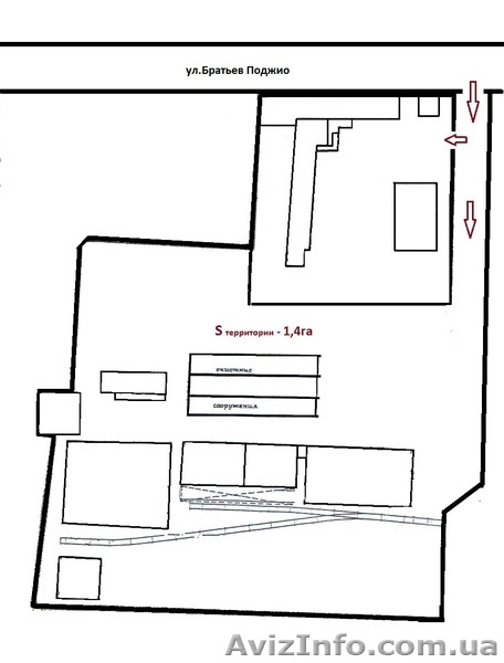
Территория расположена в районе 1-й Заставы.
Закрытая и огражденная территория 1, 4 га со своим оборудованным фасадным въездом. Внутренняя территория частично выложена плитами.
На территории расположены производственно-складские строения различной площади, высоты помещений (от 3, 50м до 9, 50м) и состояния общей площадью 2500кв.м. В основных зданиях (714, 4кв.м и 489, 3кв.м) внутренняя планировка – свободная, остальные здания разделены на внутренние помещения различной площади.
Подъезд: асфальтированный, удобный и широкий для большегрузных машин.
Въезд на территорию ч/з проходную с въездными воротами в 1-ну машину.
Коммуникации: городская канализация, центральный водопровод, свет 380Вт. Газ рядом (на территории суперфосфатного завода).
Дії з оголошенням #1082033
Поділіться з друзями і знайомими
Поділіться оголошенням Продажа производственной территории со строениями в промзоне Малиновского р-она. з друзями, знайомими, потенційними клієнтами, використовуйте для цього соціальні мережі, месенджери. Це додасть оголошенню популярності і ефект багаторазово підвищиться.
Збережіть або повідомте про порушення
Штанченко Эдуард Николаевич
- На сайті з: 13.01.2012
- Активність: 10.05.2019
Поради з безпеки
- Познайомтеся з продавцем в публічному місці
- Перевірте товар перед покупкою
- Сплачуйте лише після того як переконаєтеся, що товар відповідає опису і вашим вимогам
- Бажано провести операцію при свідках
Інші оголошення від
Штанченко Эдуард Николаевич
- 10.05.2019, 13:55
QR-код сторінки
Поділіться QR-кодом в соціальних мережах, чатах, месенджерах щоб ваші знайомі, потенційні клієнти відкрили ваше оголошення на своїх смартфонах.
Казахстан
Україна
Узбекистан
Молдова